ОАО “Химтехнопласт”

г. Ивано-Франковск

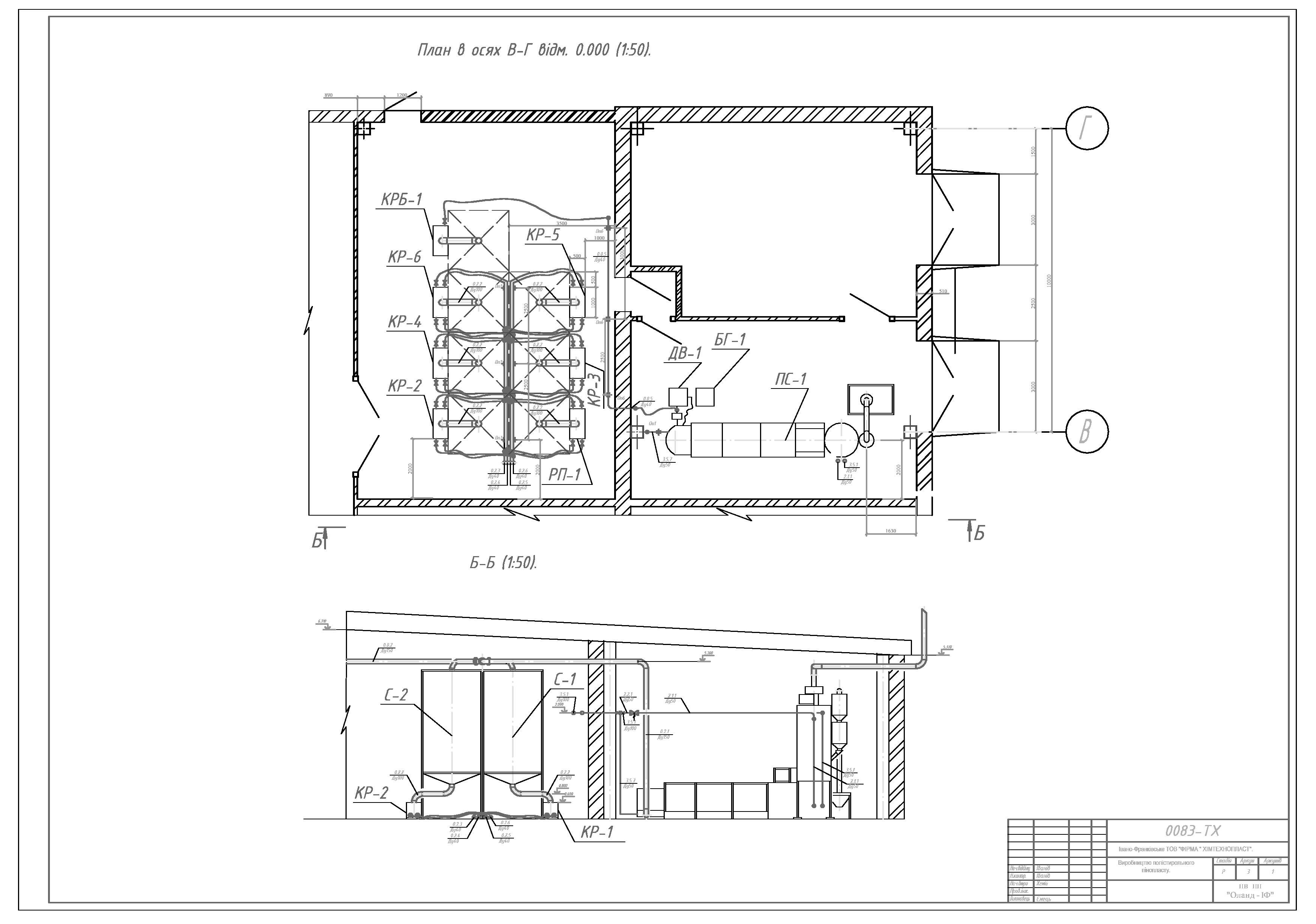
Проект завода по производству формируемого пенопласта


Еще по разделу НАШИ РАБОТЫ:

ООО "Кроноспан-УА", производство плит OSB

ООО “Кроноспан-УА”, производство плит OSB

г. Нововолынск, Волынская обл.
ООО "Кроноспан УА", производство плит ДСП

ООО “Кроноспан УА”, производство плит ДСП

г. Нововолынск, Волынская обл.
ООО "АртПрогресс"

ООО “АртПрогресс”

Завод по производству плиты МДФ Коростень
ООО "Кроно-Украина"

ООО “Кроно-Украина”

Завод по производству OSB Каменка-Бугская, Львовская обл.
ООО "Завод ДК Орисил"

ООО “Завод ДК Орисил”

г. Калуш, Ивано-Франковская обл.
ООО "КарпатСмолы"

ООО “КарпатСмолы”

г. Калуш, Ивано-Франковская обл.
Компания "TARKETT"

Компания “TARKETT”

Завод по производству фризы г. Калуш, Ивано-Франковская обл.
^
ukUkrainian